
设计风格:美式轻奢
常住人口:6人
住宅面积:208m²
设计门店:铜仁名匠装饰,别墅装修公司
设计理念:好的设计是恒久的,即使过了许久时光,精雕细琢后的家依然保持着耐看的质感,舒适的功能。
本案以海港蓝为主色调,和谐的色彩搭配能够影响到家人生活的心情,是筑就美好生活最为敏感的形式要素;而在本案中,巧妙的将高级大气的灰,与沉静优雅的蓝融合一体,创造出一幅令人倾心的都市新时尚。
别墅空间格局,无论大户型还是小户型,空间格局对于家人的生活也起到至关重要的作用,相比未合理规划的拥挤空间,宽敞通透的空间更令人生活舒适,有条理,不负岁月静好,享受美好的轻奢时光。

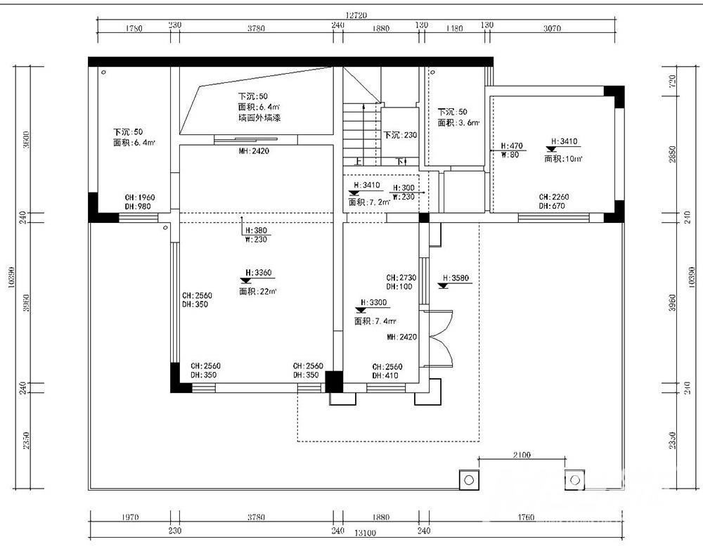
铜仁201-300平米别墅美式风格装修效果图
▲ 首层平面图

铜仁201-300平米别墅美式风格装修效果图
▲ 首层布局图
别墅玄关装修设计,步入室内,光洁亮丽的大理石地砖,一起自带的高质感光环,给人高品位的生活体验;轻,是一种生活态度,简洁布局,没有繁杂的装饰,令空间宽敞大气,而奢是一种生活品味,高级灰色调的融入,搭配散发金色光泽的隔断,不仅很好的分离了功能空间,更是一种高雅的生活品味。

铜仁201-300平米别墅美式风格装修效果图
别墅装修设计-玄关
别墅客厅装修设计,来到客厅,素雅的电视背景墙给人耳目一新的感觉,海港蓝+灰白色调的搭配,令空间层次分明,给人一种高雅时尚的视觉效果,辅以生态板材定制的电视柜,天然的原木色为冷色调升温,赋予空间更多温馨的感受。

铜仁201-300平米别墅美式风格装修效果图
别墅装修设计-客厅
别墅客厅装修设计,而沙发区域,更显生活的轻奢本质,海港蓝配色的沙发,散发着优雅的质感,深浅不一的蓝色世界,像是诉说着都市生活中的新风尚,怪不得越来越多的朋友们青睐于这种色系搭配;而金属元素在整体色彩中的穿插运用,带来充满张力的空间魅力。

铜仁201-300平米别墅美式风格装修效果图
别墅装修设计-客厅
别墅厨房装修设计,厨房各功能区依次排放,白色与原木色的搭配,整体清爽而洁净,搭配灰色的地砖及墙砖,为厨房空间诸如潮流时尚感;厨房门选择搭配了极窄边框推拉门,更充分的采光面积,令空间格局各位宽敞明晰,使人心情舒畅。

铜仁201-300平米别墅美式风格装修效果图
别墅装修设计-厨房

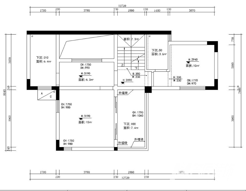
铜仁201-300平米别墅美式风格装修效果图
▲ 二层平面图

铜仁201-300平米别墅美式风格装修效果图
▲ 二层布局图
别墅儿童房装修设计,基于对业主孩子的了解,结合孩子的喜好及性格,专属定制富有童趣的儿童房,以海港蓝为基础色,可以营造出令孩子更具有想象力的氛围,培养孩子更好的性格和生活方式。

铜仁201-300平米别墅美式风格装修效果图
别墅装修设计-儿童房
别墅次卧装修设计,另一间孩子的房间,同样充满了喜欢的元素,一幅侏罗纪公园作为背景墙,使孩子喜好的展现,而白色与原木色的搭配,降低了画面的华丽感,使得空间低调不张扬,更显稳重大方,对于孩子的性格塑造也起到了积极作用。

铜仁201-300平米别墅美式风格装修效果图
别墅装修设计-儿童房

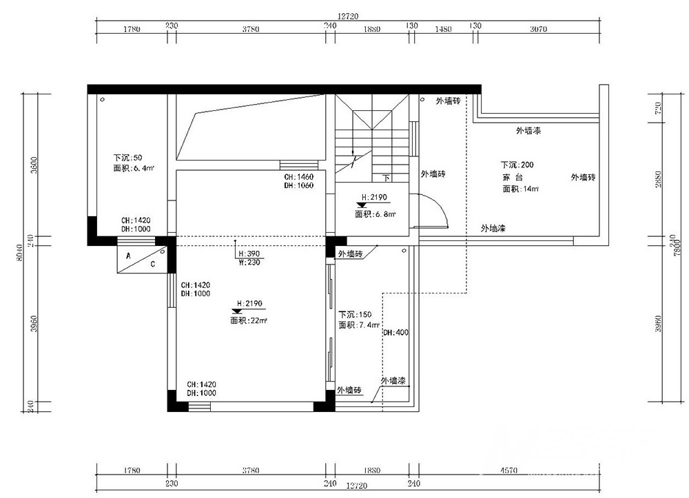
铜仁201-300平米别墅美式风格装修效果图
▲ 顶层平面图

铜仁201-300平米别墅美式风格装修效果图
▲ 顶层布局图
别墅主卧装修设计,看似简单的主卧,却透露着设计师的巧妙心思,浅淡的灰色墙面设计,时尚精致,带来了更高贵的精品生活方式,在卧室相关的软装搭配方面,素雅的地毯与原木色的配合,散发着温馨舒适的情调;以自然简约的家居物品陈设,使得空间更为宽敞,家人在居室中走动也更舒适、方便,心情自然舒畅很多。

铜仁201-300平米别墅美式风格装修效果图
别墅装修设计-主卧
红河哈尼族彝族自治州俊峰花园美式风格案例
美式风格101-200平米三居室
台州美景和府美式风格案例
美式风格101-200平米四居室
文山壮族苗族自治州中天名郡美式风格案例
美式风格101-200平米三居室
东林苑美式风格
美式风格101-200平米四居室
红河哈尼族彝族自治州骊都国际美式风格案例
美式风格101-200平米三居室
红河哈尼族彝族自治州景阳小区美式风格案例
美式风格101-200平米三居室
大理白族自治州佳诚龙苑美式风格案例
美式风格101-200平米三居室
贵港九溪墅美式风格案例
美式风格101-200平米四居室